Descripción

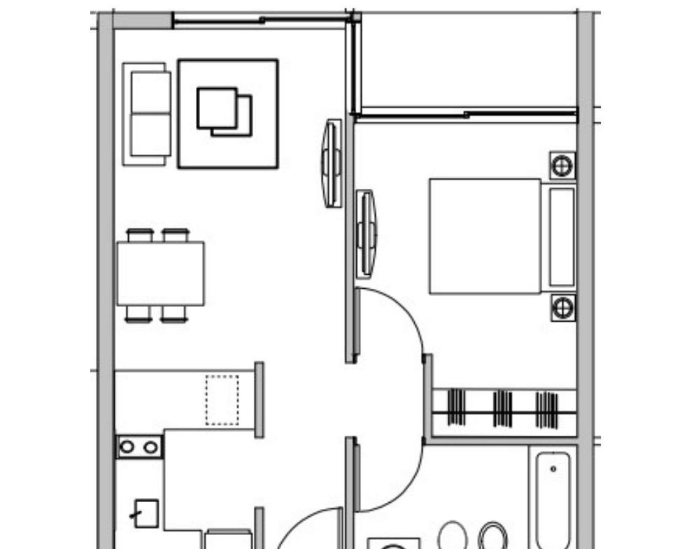
Departamento 1 dormitorio al frente de 45 m2 con balcón. Ingreso al livin comedor con salida al balcón. Cocina semiseparada por barra por barra desayunadora. Dormitorio con placard. Baño completo.
2 Piso 01
Cochera disponible.
Consultar otros pisos disponibles.


Descripción del emprendimiento

Sobre un predio parquizado de 3.000 m2 se levanta un edificio moderno de planta baja y dos pisos con 31 unidades completamente equipadas. El complejo cuenta con ingreso exclusivo sobre Av Newbery con control de seguridad. Emplazado en un predio cuyo entorno se caracteriza por su forestación privilegiada, Newbery Apart es un proyecto de alta gama que involucra lofts, monoambientes y departamentos de 1 y dos dormitorios, acompañados por cocheras y una serie de amenidades propias de un barrio cerrado: wifi, sum para reuniones y eventos, piscina, laundry, plaza de juegos y estaciones de carga para bicicletas y monopatines.

El proyecto está en obra y con fecha de entrega prevista para fines de 2026.
Ubicadas en una zona estratégica de Rosario, a pasos del aeropuerto, estas unidades combinan diseño moderno, comodidad y una oportunidad real de inversión.

Fisherton es conocido por ser una zona exclusiva y de ubicación privilegiada en la ciudad de Rosario. Calidad de vida y potencial de revalorización a corto plazo.
Cada espacio está pensado para el estilo de vida dinámico de hoy, con terminaciones de alta calidad, sistemas eléctricos sostenibles y tecnología de punta. Nuestros departamentos están completamente equipados con lo último en tecnología y comodidades. Desde cocinas modernas hasta sistemas de climatización avanzados, todo está preparado para que solo tengas que traer tus maletas.

Características constructivas y de terminaciones, muros de hormigón celular, bloques térmicos, impermeables, aislantes acústicos, livianos. Pisos y revestimientos en porcelanato y sistemas de climatización avanzados.

Forma de pago Contado. Consultar financiación.

Ubicación

  • Barrio / Ciudad Rosario
  • Distrito Santa Fe
  • Area Fisherton
  • Provincia Argentina

Descripción general

  • Departamento
  • Tipo de propiedad
  • 45.00
  • M2
  • 1
  • Dormitorio
  • 1
  • Baño

Opciones disponibles

+ Propiedades recomendadas

Comparar listados

Comparar