Descripción

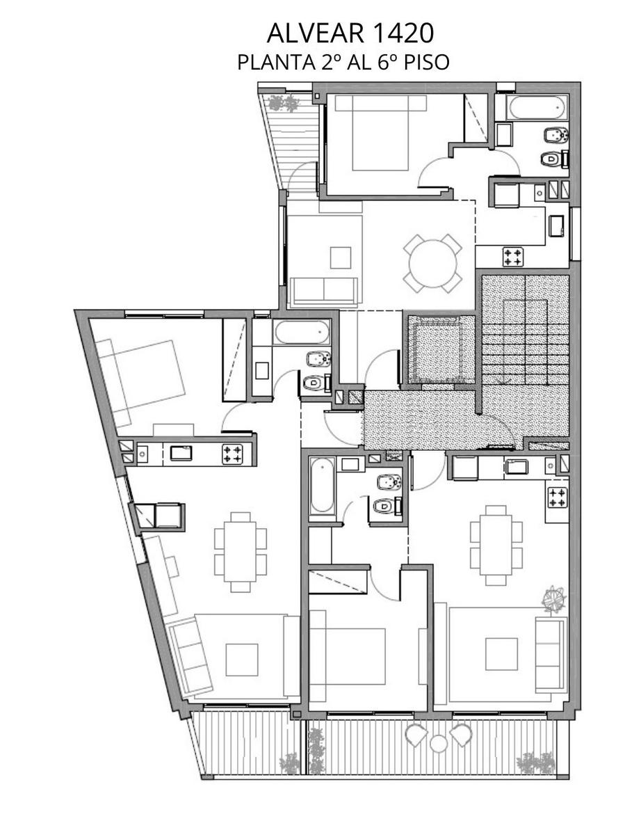
Departamento 1 dormitorio contrafrente de 43.63. 40.35 m2 cubiertos y 3.28 de balcón. Ingreso a living comedor con salida al balcón. Cocina semi integrada. 1 dormitorio con placard. Baño completo.
6 Piso 03
Consultar otros pisos disponibles.


Descripción del emprendimiento

Inicia tu inversión en un desarrollo sólido, moderno y con alto potencial de rentabilidad.

El Edificio India, en construcción con fecha de entrega junio 2027. Se emplaza en calle Alvear al 1400, en el corazón de Rosario, con cercanía a universidades, centros de salud, Bv. Oroño y áreas recreativas.

Este proyecto ofrece una excelente oportunidad para inversores y usuarios finales, con unidades funcionales y cómodas, y un local comercial en planta baja que potenciará la dinámica del edificio. Edificio de Planta Baja y 6 pisos, Terraza con amenities. Local comercial en PB. Unidades de 1 dormitorio. Orientación frente Este, con excelente luminosidad natural. Amenities en terraza: SUM, parrillero, piscina, solárium y terraza de uso común. Espacio para bicicletero.

Forma de Pago: Contado. Consultar Financiación.

Ubicación

  • Barrio / Ciudad Rosario
  • Distrito Santa Fe
  • Area Centro
  • Provincia Argentina

Descripción general

  • Departamento
  • Tipo de propiedad
  • 40.35
  • M2
  • 1
  • Dormitorio
  • 1
  • Baño

Opciones disponibles

+ Propiedades recomendadas

Comparar listados

Comparar