Descripción

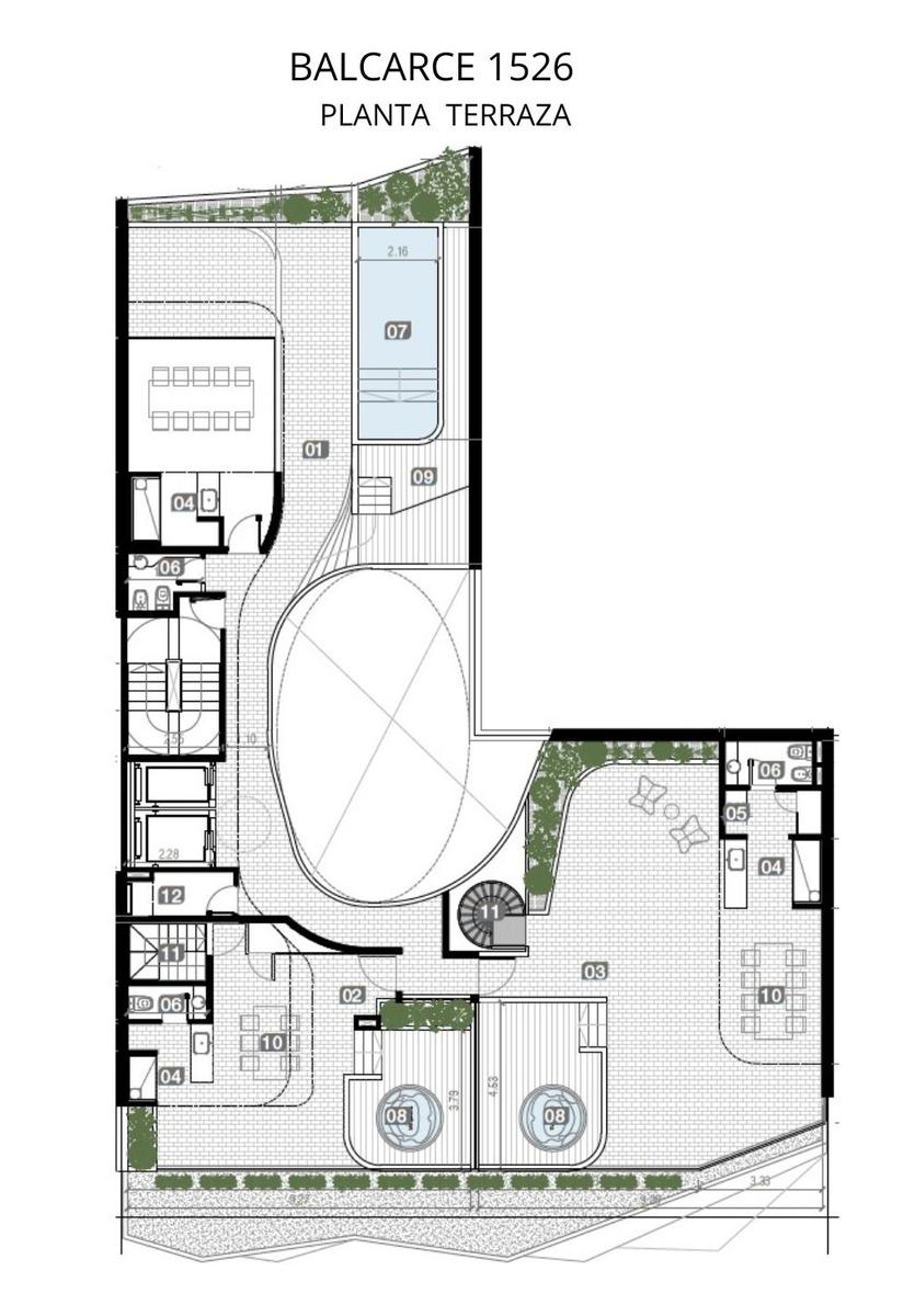
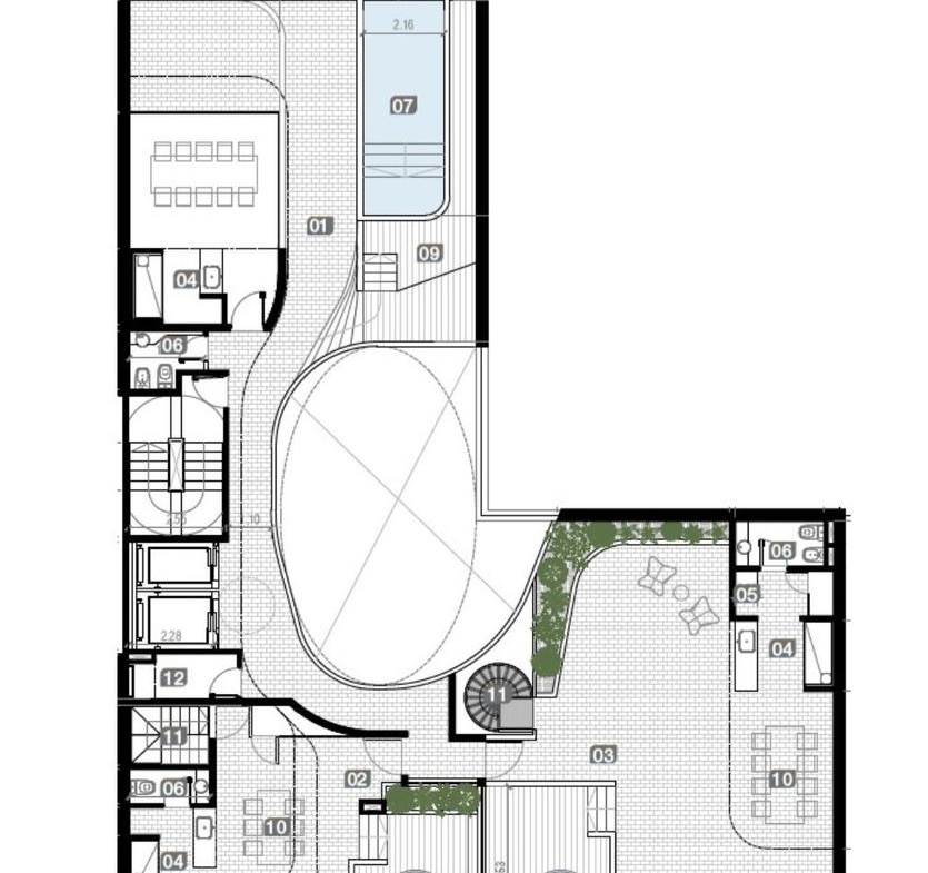
Departamento premium de 3 dormitorios al frente de 221.10 m2 con balcones y terraza. 144.30 m2 cubiertos, 20.90 m2 de balcones y 55.90 m2 de terraza con pérgola. Ingreso al living comedor con salida al balcón al frente. Cocina semiseparada por barra desayunadora. Toilette de recepción. 3 dormitorios el principal en suite con vestidor y otros dos con placares. Lavadero independiente. Otro baño completo. Balcón contrafrente con escalera a terraza de uso exclusivo con pérgola, asador, minipiscina, Baño y depósito.
8 Piso B
Cochera opcional.
Consultar otros pisos disponibles.


Descripción del emprendimiento

BlcPrk se ubica en Balcarce 1526, en construcción con fecha de entrega para diciembre 2028. En un entorno estratégico de Rosario, a pocos metros del Bv. Oroño y el Parque Independencia, con fácil acceso a la Facultad de Derecho, Tribunales y diversos centros comerciales y turísticos. Esta localización combina la tranquilidad de los espacios verdes con la energía vibrante de la ciudad, ideal para quienes buscan una vida activa y conectada.
El proyecto, desarrollado en planta baja más 8 niveles, ofrece una amplia variedad de unidades que incluyen departamentos de 1, 2, 3 y 4 dormitorios, estudios monoambientes y oficinas, adaptándose a distintos estilos de vida. Su diseño arquitectónico se distingue por un equilibrio entre modernidad y funcionalidad, con amplios balcones y terrazas privadas que promueven la conexión con el exterior, aportando luz natural y ventilación cruzada a cada espacio.

En el corazón del edificio, un patio central genera un flujo constante de luz y aire, aportando bienestar a cada unidad y destacando la importancia de la calidad ambiental en el diseño. Los palieres abiertos y las visuales despejadas completan esta propuesta, integrando de manera armónica la arquitectura con su entorno.
BlcPrk también ofrece amenities exclusivos pensados para el disfrute y la comodidad: piscina con solarium, quincho con parrillero y terrazas con vistas abiertas al Parque Independencia y Bv. Oroño, ideales para momentos de esparcimiento y relax. En planta baja, el edificio cuenta con cocheras y bicicleteros, reforzando su compromiso con la movilidad urbana sostenible.

Forma de pago: Contado. Consultar financiación.

Ubicación

  • Barrio / Ciudad Rosario
  • Distrito Santa Fe
  • Area Centro
  • Provincia Argentina

Descripción general

  • Departamento
  • Tipo de propiedad
  • 144.30
  • M2
  • 3
  • Dormitorios
  • 2
  • Baños

Opciones disponibles

+ Propiedades recomendadas

Comparar listados

Comparar