Descripción

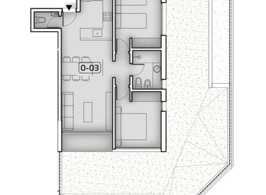
Departamento de 2 dormitorios en esquina de 138 m2 con patio. 61.08 m2 cubiertos y 77.43 m2 de patio. Amplio living comedor con salida al patio. Cocina semiseparada. Toilette de recepción. 2 dormitorios con placard. Baño completo.
Pb 03 con cochera y baulera
Consultar otros piso disponibles.


Descripción del emprendimiento

Condominio CONECTAR ubicado en Fisherton es un desarrollo residencial único en construcción con fecha de entrega Mayo 2029, ubicado en la intersección de Avenida Schweitzer e Irazusta, en pleno Fisherton Aldea, uno de los barrios más valorados de Rosario. Su entorno combina la tranquilidad de un barrio tradicional, rodeado de jardines y árboles, con la cercanía a servicios, centros comerciales y vías de acceso rápidas.

El proyecto ofrece 26 departamentos de 1, 2 y 3 dormitorios, con una arquitectura contemporánea, sobria y funcional. Cada unidad fue diseñada para aprovechar al máximo la luz natural, con ambientes amplios, terminaciones de calidad y vistas al verde que rodea el conjunto.

Amenities: sala de coworking, playroom para los más chicos y gimnasio en planta baja.
En el gran jardín se destacan las pérgolas con bancos, piscina con solárium, quincho interior y exterior, sector de fogonero y kids zone, todos espacios pensados para el esparcimiento y la convivencia. Cada rincón está diseñado en conexión con la vegetación y la naturaleza

Terminaciones de Categoría.

Formas de pago: Consultar Financiación.

Ubicación

  • Barrio / Ciudad Rosario
  • Distrito Santa Fe
  • Area Aldea Fisherton
  • Provincia Argentina

Descripción general

  • Departamento
  • Tipo de propiedad
  • 61.00
  • M2
  • 2
  • Dormitorios
  • 1
  • Baño
  • 1
  • Garage

Opciones disponibles

+ Propiedades recomendadas

Comparar listados

Comparar