Descripción

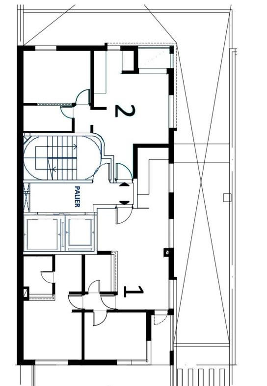
Departamento de 2 dormitorios al frente de 64.87 m2 (51 m2 cubiertos + 13.87 m2 de balcón terraza): Cocina totalmente equipada semi separada del living comedor. Un baño completo. Office. Dos dormitorios, el principal con baño en suite y vestidor. Balcón terraza.
9 Piso 01
Cocheras Opcionales


Descripción del emprendimiento

Edificio en Construcción. Entrega Febrero 2026. Edificio de planta baja y 12 pisos con dos niveles de cocheras compuesto por departamentos de 1 ambiente y de 1 y 2 dormitorios.
Excelente ubicación, a pasos de Avenida Pellegrini y Avenida Corrientes.

Terminaciones de Categoría

Puertas de ingreso blindadas. Pisos de porcelanato y flotantes biselados. En cocina muebles marca Reno. Placares con interiores. Internet. Instalación prevista para Split.

Forma de pago: Anticipo 50% y el saldo en cuotas mensuales hasta posesión ajustadas con ICAC.

Ubicación

  • Barrio / Ciudad Rosario
  • Distrito Santa Fe
  • Area Abasto
  • Provincia Argentina

Descripción general

  • Departamento
  • Tipo de propiedad
  • 64.87
  • M2
  • 2
  • Dormitorios
  • 2
  • Baños

Opciones disponibles

+ Propiedades recomendadas

Comparar listados

Comparar